Charmant condo de style loft au cachet industriel situé dans l’historique usine des biscuits Whippet à Montréal
Charmant et rempli d’histoire, ce condo de style loft situé dans l’ancienne usine des biscuits Whippet, construite en 1906, incarne parfaitement l’esprit industriel du quartier Hochelaga-Maisonneuve. Il s’agit d’une unité rare sur deux étages, offrant un cachet incomparable grâce à ses plafonds de 12 pieds au niveau principal et de plus de 8 pieds au sous-sol. Les murs de briques d’origine, les poutres apparentes et les plafonds de bois confèrent au lieu une personnalité unique, chaleureuse et authentique. L’immeuble, emblématique du secteur est situé dans un cul-de-sac, procurant une tranquillité exceptionnelle au cœur de la ville. L’ensemble crée un cadre de vie harmonieux où l’histoire, l’architecture et le confort moderne se rencontrent.

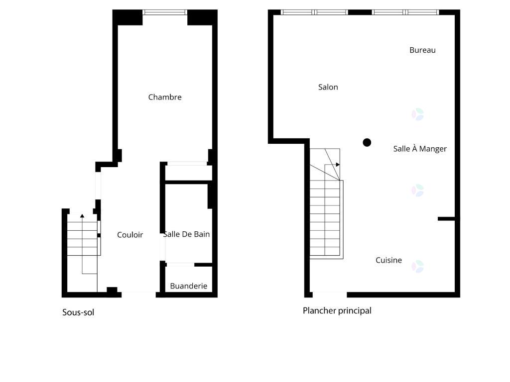
Dès l’entrée dans le condo, on découvre un vaste espace de vie ouvert qui profite d’une luminosité remarquable. La configuration à aire ouverte laisse pleinement apprécier les volumes généreux et les matériaux bruts qui racontent un siècle d’histoire. Le cachet distinct du lieu s’impose instantanément, créant une impression d’espace et de caractère. L’aire dédiée à la cuisine est parfaitement aménagée pour faciliter la préparation des repas, avec une disposition fonctionnelle qui invite à cuisiner au quotidien. Tout est à portée de main et deux places assises au coin repas permettent de partager un café du matin ou un repas sur le pouce dans une atmosphère conviviale.


À quelques pas, la salle à manger offre un cadre idéal pour recevoir. On peut aisément y installer une grande table pour accueillir parents et amis lors de soirées chaleureuses. L’endroit se prête merveilleusement bien aux longues discussions et aux repas partagés qui rythment les moments importants. Grâce à la générosité de l’espace, il est même possible d’ajouter quelques plantes pour insuffler une touche de verdure ou un petit cellier pour les amateurs de vins qui souhaitent conserver leurs bouteilles dans un espace aménagé avec soin. L’atmosphère y est à la fois accueillante et élégante, parfaite pour créer des souvenirs mémorables.

Près de la fenêtre, un espace a été pensé pour accueillir un bureau. Baigné de lumière naturelle, cet emplacement est idéal pour travailler dans un environnement inspirant. Que ce soit pour le télétravail, les projets personnels ou simplement pour profiter d’un lieu paisible pour se divertir, cet espace lumineux est un véritable atout.

Juste à côté se trouve le salon, un espace intime et confortable où il est facile d’imaginer passer d’agréables soirées. Que l’on souhaite regarder un film, se détendre après une journée chargée ou simplement feuilleter un livre, cette pièce offre tout le confort souhaité. Le mur de briques, élément phare du design industriel, ajoute chaleur et authenticité, tandis que la grandes fenêtre renforce l’impression d’ouverture. L’ensemble crée un lieu de détente où il fait bon se retrouver.

En descendant au sous-sol, on pénètre dans un espace entièrement consacré au repos et à la tranquillité. La chambre principale profite d’une atmosphère feutrée, accentuée par son mur en pierre et le plafond en bois qui évoquent immédiatement une sensation de douceur et de confort. À seulement quelques pas, la salle de bain moderne complète cet étage, parfaitement équipée pour bien commencer ou terminer la journée. L’aménagement y est soigné, invitant autant à une routine matinale énergisante qu’à un moment de détente.




Le condo comprend également une zone de rangement pratique ainsi que la possibilité d’aménager une deuxième chambre fermée selon les besoins. Les résidents bénéficient en outre d’une magnifique terrasse commune, idéale pour profiter de l’été, admirer la vue ou partager un moment en plein air entre voisins.


La localisation est exceptionnelle : à proximité immédiate de la vibrante Promenade Ontario, du métro Viau, d’un arrêt d’autobus au coin de la rue, d’une station BIXI juste en face et d’un parc directement en façade. Le stationnement sans vignette facilite grandement la vie quotidienne, et tous les services essentiels se trouvent à distance de marche. Une opportunité unique dans un secteur en pleine effervescence, offrant un mode de vie urbain, pratique et empreint de charme.
Les propriétaires demandent 432 500$. Nous vous invitons à consulter le site Centris pour plus d’informations ou à communiquer avec Nicolas Santorineos. Photos par Laura Couturier
